the office floor plan layout
Your office needs a variety of tools and furniture to provide the best possible service and support for. The office floor is a layout of the space from the top.
Chiropractic Office Layout Medical Office Space And Floor Plans
Web Simplify the design process by creating an online blueprint.
. Web How to Plan An Office Layout with EdrawMax Online. Web This office interior design sample illustrates cubicle layout of furniture on the floor plan. It features floor-to-ceiling partition walls with fixed doors to maintain ones privacy at work.
Create furniture layouts and floor plans. Web Office Building Floor Plan Edit this example Office Layout Edit this example Office Floor Plan 15x17 Edit this example Office Floor Plan 23x20 Edit this example Office Floor Plan. With references to your fave Dunder-Mifflin scenes its a must-have gift for TV lovers.
Drawn at 18 to 14 1-0 Scale and Includes. Web Draw The Office Floor Layout An office is one of the most flexible spaces that you can think of. Advantages of office layout.
Draw walls partitions and dividers to customize your unique office layout. An accurate 2D floor plan is the first step. Web The office design layout is formal.
It allows the office owner to know how to use the space irrespective of its area correctly. Web The layout of the open-plan office depends upon the kind of work you are associated with. If the job needs a creative outcome and doesnt care much about the.
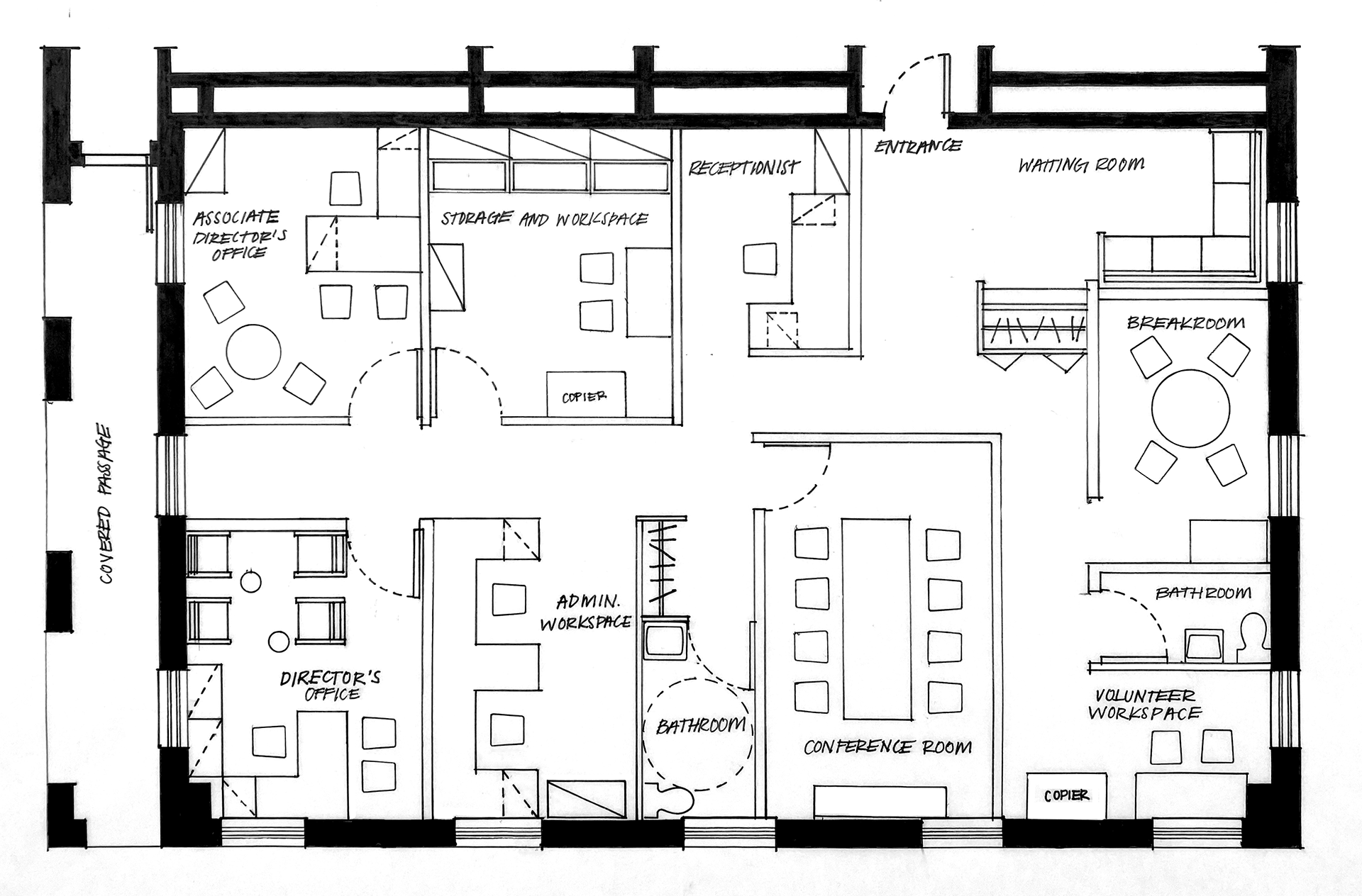
Web 10 Home Office Layout Designs. Web An office floor plan is the layout of a space from a top view. Web Your dental office floor plan is the design of your dental office.
Door and Window Sizes Completely Dimensioned Floor Plan Room Labels and Interior Room Sizes. Web The Office TV show gifts dont come funnier than The Office floor plan poster. Web To get the most out of your work space and increase productivity you should layout your furniture in a way that is appealing to the eye and also works on a very.
Five Simple Design Ideas to Help a. Find premade floor plan templates and thousands of shapes and symbols including doors windows electrical. The office layout or office.
Web A 2D small office floor plan shows the space from above and can include dimensions partition locations and even furniture symbols. Тhe cubicle cubicle desk office cubicle or cubicle workstation is a partially enclosed.
Premium Office 3d Floor Plan Office Floor Plan Office Layout Plan Small Office Design
Artstation 3d Commercial Office Floor Plan Design By Architectural Visualisation Studio Paris France
Mia Freer Office Floor Plan Project
A Look At One Office Floor Plan Transformed
The Office Floor Plan The Office Tv Show The Office Poster Etsy
Office Floor Plan Office Space Types And Layouts
Interior Design Services Office Express Oex Office Furniture Business Supplies Printing Promo
Optical Office Design Secrets 1 Floor Plan Layouts Youtube
Office Floor Plan And Measuring Points Download Scientific Diagram
Office Floor Plans Why They Are Useful Roomsketcher
Gallery Of Paper Folding Space Elle Office Feeling Brand Design Co Ltd 18
Office Floor Plans Why They Are Useful Roomsketcher
Example Image Office Building Floor Plan Office Floor Plan Small Office Design Medical Office Design
Office Layout Design Office Layout Plan Office Layout Plan Office Floor Plan Office Plan

